解决手机玩王者荣耀发烫,耗电快的方法
解决手机玩王者荣耀发烫,耗电快的方法
手机玩王者荣耀发烫、耗电快怎么解决?
玩王者荣耀的时候手机出现卡顿的主要原因是在游戏过程中,手机硬件发热,这时CPU会降频锁核来减少发热量,这样游戏运行的过程就会出现卡顿。

↑↑↑降频前后对比

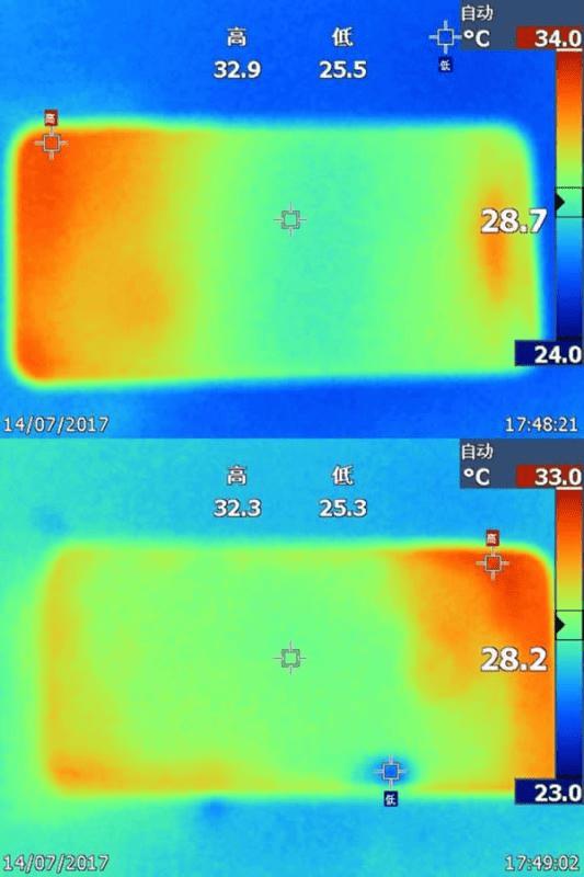
↑↑↑游戏前(左)后(右)手机温度上升明显
我在打王者荣耀的过程中,也饱受发热降频的困扰,所以为了给手机消暑,我想到了这么几种物理降温的方法,我们一起来看一看效果如何!

1、降温冰袋
首先,我们最容易想到的就是用冰块来给给手机降温,-10℃的冰绝对是降温的利器!于是我们购买了冰袋来实验一下降温效果如何。
在游戏过程中,我们将手机放在了冰袋上来玩王者荣耀,不出所料冰袋的降温效果特别惊人,全过程完全没有降频,甚至长时间游戏之后,手机的温度甚至比之前温度还要低。
不过,使用冰袋游戏的时候比较冰手,而且冰袋持续时间只有个把小时,效果只能维持两三局游戏。

2、石墨导热贴
和冰袋相比,接下来这个就简单很多了,石墨贴片目前经常用在电子元器件中,作为导热散热使用。所以我们也拿来了石墨贴纸来试试散热效果。

↑↑↑请忽略我拙劣的贴膜技术^_^
将石墨贴纸贴在手机手机背面之后,手机散热问题有了一定程度的改善。不得不说石墨的导热效果是很不错的,根据热成像图可以看到,背面的温度分布均匀,而且有一定程度的降低。
不过对于手机正面来说,温度没有明显的下降,可能是背面的石墨贴鞭长莫及了。

↑↑↑正反两面的温度差距明显
3、手机散热支架
其实手机与电脑一样,也有专门的散热支架,利用小风扇让手机散热降温。这样的产品在淘宝上可以搜索到很多,我们选购了一款,来看看散热支架对手机降温有什么帮助吧!


使用这样的散热支架,不仅有两个风扇来加强散热,还让手持手机更加舒适,减少了误触的风险。实验表明,采用了散热支架之后,手机的温度有了持续的下降,明显没有了降频卡顿的现象,散热效果是十分明显的。